실버타운은 전통적인 가족관계가 해체되면서 새로운 노인주거의 대안으로 떠오른 주거형태입니다. 60대 이상의 신체,건강상태와 라이프 스타일을 고려하여 지어지고, 단순 거주만이 아닌 호텔식 서비스가 결합된 레지던스 상품으로 볼수 있습니다. 우리나라에는 2000년 초기 부터 본격적으로 운영되었으나 20여년이 지난 지금은 입주하려면 대기가 걸리는 등 많이 활성화 되어 있는 상태입니다. 그러나 임대주택 성격에서의 높은 가격과 유지비용과 스스로 거주를 못하면 퇴소를 해야하는 듯 아직은 많은 대다수의 노년빈곤을 겪고 있는 우리나라 노인들에게는 진입장벽이 있는 그들만의 거주지 일수도 있습니다. 앞으로 많은 실버타운의 세부내용을 조사해서 소개하도록 하겠습니다.
1. KB골든라이프케어 평창카운티 세부사항

1) 개요
- 위치: 서울시 종로구 평창문화로 87
- 개원일자 : 2023년 12월
- 입주자격 : 만60세 이상의 독립된 생활이 가능하신 분(부부 중 1명 60세 이상)
입소대상자가 부양을 책임지고 있는 24세 미만의 자녀,손자녀 - 특징 : 자연환경에 둘러싸여 있어 쾌적한 주거환경 제공
- 세대수 : 총 164세대
2) 가격 및 입주비용
- 계약기간 : 5년(의무거주 2년) {분양가(입주보증금)+월생활비형식}
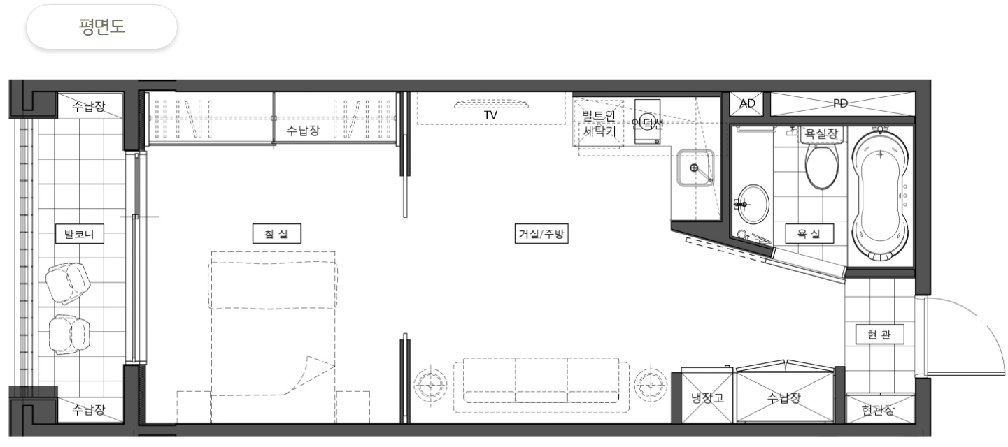
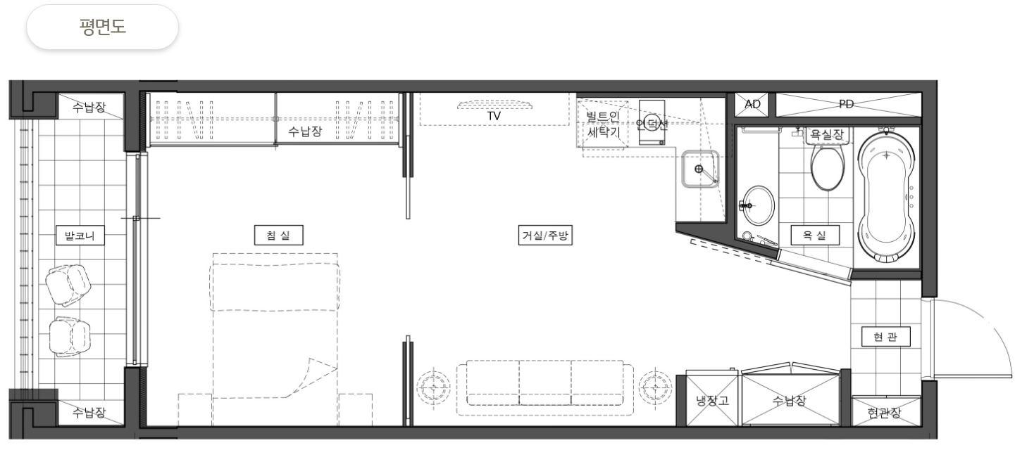
※ 특별 프로모션 : 24년 9월~12월 계약자에 한해 의무 거주기간 적용 無 - 보증금 및 월세 기준 : 39 B type 전용면적 39.3㎡(약11.9평) 계약면적 73.4㎡(약 22.2평)기준(2인 기준)
※ 최소평형은 34 type가 있으나 최소 보증금 기준 금액이 나와있지 않아 브로슈어 기준금액 예시 평형으로 기준 수립



평창카운티의 경우 특이한 점으로 보증금에 따른 월세 변동을 들수 있겠습니다 그리고 164세대 중 보증금을 2.3/3.3억으로 높인 평수는 60세대 한정이고 나머지 100세대는 보증금은 3천만원만 받음으로서 보증금을 낮추고 월세를 많이 받는 임대형식을 취했습니다. 금액의 차이를 보면 2억이나 3억의 추가 보증금의 경우 3천만원과 대비하여 4.2% 수익율 비율로 추가금액을 부담하는 수준이어서 개인이 2억이나 3억으로 4.2% 이상의 수익을 얻을 수 있다면 굳이 보증금을 집어넣을 필요는 없어 보입니다. 물론 꾸준히 4.2%이상의 이자수익을 얻는 것이 쉽지는 않지만 마냥 어려운 수준의 금액도 아니어서 본 포스팅에서는 보증금 3천만원 기준으로 금액을 산정하겠습니다. 39B 타입으로 입주시는 보증금 0.3억원, 월460만원(식비포함, 부부기준)이 필요합니다. 식비는 1인 월 60식(60만원)입니다. 월생활비에 주1회 하우스키핑서비스, 이불세탁서비스, 피트니스, 스파, 부대시설 등이 포함되어 있으며 급탕비, 전기료, TV수신료, 상하수도비(?), 세대 소모품 교체비 등은 별도입니다.
3) 장점
- 2끼 식사 제공(별도 비용)
- 가정의학과 전문의의 주1회 건강 상담과 방문 진료
- 전문간호사에 방문 복약 관리와 간호 처치
- 디지털헬스케어를 통한 실시간 건강 모니터링
- 전문운동지도사에 의한 운동 코칭
- 의료기관 진료 연계
- 건강검진서비스
2. 개인적 평가
은행권에서 투자하여 만든 실버타운입니다. 매월 내야하는 비용은 39형을 기준으로 부부가 340만원을 내어야 하고 식비는 포함시에는 460만원 정도 됩니다.(60식, 2인부부 기준) 수도광열비 등은 별도입니다. 일반 아파트를 기준으로 하여도 냉난방, 급탕비, 전기료가 관리비의 중심인데 2~30만원은 잡는다고 대략 치면 매달 490만원 정도의 금액이 들어간다고 볼수 있습니다. 이는 약 연봉 6천9백만원의 4인가족 실수령액인데 생활하는 별도의 비용(식비가 추가되어야하므로 대략 월100만원)까지 고려하면 최소 연봉8천5백만원 이상을 벌고있는 부부가 생활할 수 있는 금액입니다. 실버타운의 수준이 기본적인 생활수준이 보장되는 노인들을 대상으로 했다고 고려했을때에도 매월 고정수입이 590만원 정도는 나와야 (보증금 제외) 생활할 수 있는 곳입니다.
3. 타 시설과 유지비용 비교표(최소면적, 2인 기준)
| 구분 | 계약 기간 |
보증금 | 거주필수 생활비 |
식비 (2인기준) |
별도 관리비 |
월거주 최소비용 |
개별 생활비용 |
월거주 비용 |
| 삼성노블 카운티 |
3년 | 3.6억 | 380만원 | 170만원 (일3식) |
없음 | 550만원 | 80만원 | 630만원 |
| 서울시니어스 가양타워 |
5년 | 3.85억 | 190만원 | 102만원 (일2식) |
약30만원 (전기,급탕 냉난방별도) |
322만원 | 100만원 | 422만원 |
| 더클래식500 | 3년 | 10억 | 427만원 | 60만원 (월20식) |
약30만원 (전기,급탕 냉난방별도) |
517만원 | 100만원 | 617만원 |
| 유당마을 | 3년 | 2억 | 356만원 | 포함 | 약30만원 (전기,급탕 냉난방별도) |
386만원 | 80만원 | 466만원 |
| 서울시니어스 분당타워 |
5년 | 3.25억 | 204만원 | 155만원 (일3식) |
약30만원 (전기,급탕 냉난방별도) |
389만원 | 80만원 | 469만원 |
| 평창카운티 (최소평형아님) |
5년 | 0.3억 | 340만원 | 120만원 | 약30만원 (전기,급탕 냉난방별도) |
490만원 | 100만원 | 590만원 |
※ 개별생활비용은 옷구입 개별 소모품 구입 등 생활에 필요한 비용을 산정한 것이고 80(본 실버타운은 식사 추가 포함20 더하여 100)은 개략적으로 산정한 금액입니다. 향후 개별 생활 비용에 대한 기준을 재수립하면 업데이트 하도록 하겠습니다.
입주,유지비를 중심으로 한 실버타운 추천 [1] 삼성노블카운티
실버타운은 전통적인 가족관계가 해체되면서 새로운 노인주거의 대안으로 떠오른 주거형태입니다. 60대 이상의 신체,건강상태와 라이프 스타일을 고려하여 지어지고, 단순 거주만이 아닌 호텔
aa.bigcatdad.com
2024 서울시 재산세 신용카드 무이자 할부 안내
7월에 이어 9월도 재산세 납부월입니다. 서울시에서 발표한 재산세 납부 관련 신용카드 무이자 할부를 안내해 드리오니 납부시 확인바랍니다. 재산세 납부일자 : 24년 9월16일 ~ 9월 30일 이하 서
bigcatdad.com
'실버타운' 카테고리의 다른 글
| 입주,유지비를 중심으로 한 실버타운 추천 [8] 더힐실버타운 (15) | 2024.10.02 |
|---|---|
| 입주,유지비를 중심으로 한 실버타운 추천 [7] 스프링카운티자이 (25) | 2024.09.28 |
| 입주,유지비를 중심으로 한 실버타운 추천 [5] 서울시니어스 타워-분당타워 (6) | 2024.09.21 |
| 입주,유지비를 중심으로 한 실버타운 추천 [4] 유당마을-최초 실버타운 (3) | 2024.09.20 |
| 입주,유지비를 중심으로 한 실버타운 추천 [3] 더 클래식 500 (2) | 2024.09.19 |